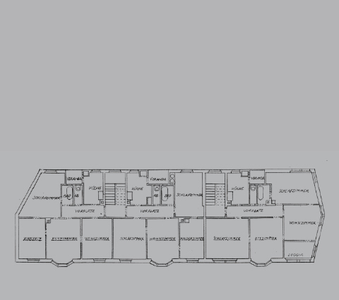
Abb. oben: Grundriss 1. Obergeschoss

     
 

Langenmantelstr. 26 - 28

 

Mehrfamilienhaus

für Werksangestellte

Erbaut 1923/24

 

Stadtjägerviertel

Autoren:

Sabine Klotz und Bettina Kohlen

--> Druckansicht [pdf]

--> Lageplan [Google Maps]

--> Verwendete Materialien

--> Literatur

 

 

 

 

Gehobener Komfort für Werksangestellte

Die Spinnerei Wertach plante nach dem Ersten Weltkrieg den Bau von werkseigenen Wohngebäuden auf Fabrikerweiterungsflächen. Zu diesem Zweck richtete sie unter der Leitung des Augsburger Architekten Martin Springer ein Baubüro ein, das die Entwürfe für das dreigeschossige, den Angestellten vorbehaltene Mietwohnhaus mit zwei Eingängen lieferte. Die Errichtung von firmeneigenen Wohnungen lag nicht nur im Unternehmerethos begründet, sondern war auch eine gewinnbringende Investition, um fähige Arbeitskräfte anzuwerben und an das Unternehmen zu binden. Eine rhythmisch gegliederte Fassade, die Verwendung konventioneller Materialien und aus dem "Heimatstil" übernommene Gestaltungselemente, wie sie in der Langenmantelstraße zur Ausführung kamen, finden sich häufig im Wohnungsbau der 1920er Jahre. Die Vier-Zimmer-Wohnungen waren mit Bad, Toilette, Gasfeld in der Küche und Loggia ausgestattet. Für den vergleichsweise hohen Komfort betrug die monatliche Miete nur 11 Reichsmark. Der Fabrikstrom war kostenlos. Im Haus Nr. 28 gab es pro Stockwerk zwei Wohnungen von etwa 90 qm, Haus Nr. 26 für leitende Angestellte hatte je Etage eine Wohnung mit ca. 120 qm. Zu diesen Wohnungen gehörte auch jeweils eine Kammer im Dachboden für das Dienstmädchen. Dem Gebäude war ein eingezäunter Vorgarten vorgelagert; im Osten gab es einen Hof zum Aufhängen der Wäsche und einen Garten mit Gemüsebeet, Kirschbäumen, Sandplatz und Brunnenbecken. Ein eigener Garten war den Bewohnern des Hauses Nr. 26 vorbehalten. Fast jede Familie verfügte über eine Parzelle in der nahen Schrebergartenanlage.

Idyllische Kindheit vor dem Krieg

Dem privilegierten Status der Werksangestellten entsprechend, erlebten die Kinder der Mieter in den 1930er Jahren eine unbeschwerte Zeit, abgeschottet von den ärmlichen Arbeiterquartieren der Wertachvorstädte. Eine frühere Bewohnerin erinnert sich noch heute an ihre vielen Bücher und qualitätvollen Spielsachen – vom elektrischen Puppenherd bis hin zu Roll- und Schlittschuhen. Die Ferien wurden bei Verwandten in Vorarlberg und der Schweiz verbracht. Erst der Zweite Weltkrieg schränkte die "schöne Zeit" ein – neben Lebensmitteln wurden auch die Spielsachen knapp, Urlaubsreisen entfielen. Trotz starker Bombenschäden wurden 1944 zwei weitere Familien in die Vierzimmerwohnung eingewiesen.

Das Spinnerei-Areal

Vom ehemaligen Fabrikensemble der 1848 gegründeten Spinnerei Wertach zwischen Senkelbach und Plärrergelände zeugen heute nur noch der Spinnereihochbau an der Langenmantelstraße, die Direktorenvilla an der Rehlingenstraße und die äußerlich kaum veränderten Werkswohnungsbauten an der Langenmantel- und Friedrich-Chur-Straße. Der ursprüngliche Zusammenhang des Areals ist nicht mehr zu erkennen. Die an die Dierig Textilwerke GmbH übergegangenen Wohnbauten wurden 1994 an ein Augsburger Immobilienunternehmen veräußert und schließlich in private Eigentumswohnungen unterteilt.

 

 

 

Verwendete Materialien

 

 

 

Abbildungen

Rainer Ackermann, Birgit Zielke, Privatbesitz Christine Willutzki

 

 

 

Literatur

 

Fürmetz, Gerhard / Nerdinger, Winfried / Wolf Barbara (Hg.):

Häusergeschichte(n). Augsburger Häuser und ihre Bewohner.

Augsburg 2009, S. 44-45.